.
Paulina Hodoń
Broker
Zapytaj o ofertę
Zadzwoń do Agenta
Zapytaj o ofertę
Skontaktuj się z Agentem Metrohosue i umów się na prezentację
Wybierz preferowaną datę
Sprzedaż Dom Aleksandrów Łódzki, pow. zgierski
FAZA156
Sprzedaż
Wolnostojący
1 450 000 PLN 8 042 za m2
Aleksandrów Łódzki, pow. zgierski
4 pokoje
180 m²
925 m² działka
Zapłacisz PLN/miesięcznej raty kredytu
Oprocentowanie %
O nieruchomości
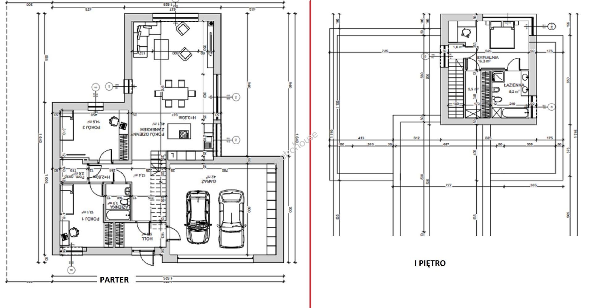
ALEKSANDRÓW ŁÓDZKI-dom w stanie deweloperskim-174 m2 z garażem na dwa auta. Polecam Państwu serdecznie dom w stanie deweloperskim o powierzchni całkowitej 174 m2 na działce 925 m2. Znajduje się on w bardzo lubianej okolicy ul. Torfowej.
Na parterze znajdują się : hall, korytarz, łazienka, pom. gospodarcze, pokój dzienny z aneksem kuchennym, dwa pokoje oraz dwustanowiskowy garaż - 42 m2. Piętro : korytarz, garderoba, łazienka, sypialnia....
Pokaż więcej
Podstawowe informacje
Stan nieruchomości:
Nie określono
Rok budowy:
2022
Liczba pięter:
1
Stan elewacji:
Nie określono
Stan budynku wewnątrz:
Stan oświetlenia:
Nie określono
Podłoga:
Nie określono
Ogrzewanie:
Gaz miejski
Materiał:
Pustak ceramiczny
Certyfikat energetyczny:
Nie określono
Parking:
Nie