.
Łukasz Stoczkowski
Broker
Zapytaj o ofertę
Zadzwoń do Agenta
Zapytaj o ofertę
Skontaktuj się z Agentem Metrohosue i umów się na prezentację
Wybierz preferowaną datę
Sprzedaż Dom Wysokie, pow. zamojski
FINA333
Sprzedaż
Wolnostojący
Obniżka ceny
680 000 PLN 5 667 za m2
Wysokie, pow. zamojski
3 pokoje
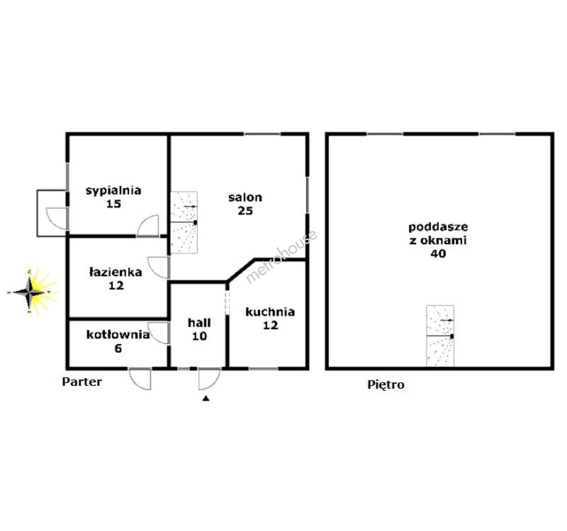
120 m²
1000 m² działka
Zapłacisz PLN/miesięcznej raty kredytu
Oprocentowanie %
O nieruchomości

Przytulny dom z piękną działką w okolicy Zamościa. Idealny dla rodziny z dzieckiem.

Na sprzedaż mamy ciepły i przytulny dom zbudowany z bali o powierzchni 120m2 na działce  1000 m2.

Atutem nieruchomości jest niski koszt ogrzewania (ogrzewanie gazowe).

Dom budowany był z dbałością o szczegóły z wysokiej jakości materiałów dzięki czemu bardzo szybko się nagrzewa i trzyma ciepło.

Co jakiś czas dom był...

Pokaż więcej
Podstawowe informacje
Stan nieruchomości:
Nie określono
Rok budowy:
2005
Liczba pięter:
1
Stan elewacji:
Nie określono
Stan budynku wewnątrz:
Do wprowadzenia
Stan oświetlenia:
Nie określono
Podłoga:
Nie określono
Ogrzewanie:
Gaz miejski
Materiał:
Drewniana
Certyfikat energetyczny:
Nie określono
Parking:
Nie
Udogodnienia
Blisko lasu
Piękny widok
Domofon
Drzwi antywłamaniowe
Alarm
Monitoring
Rolety antywłamaniowe
Wideodomofon