.
Radosław Jodziewicz
Kierownik
Zapytaj o ofertę
Zadzwoń do Agenta
Zapytaj o ofertę
Skontaktuj się z Agentem Metrohosue i umów się na prezentację
Wybierz preferowaną datę
Sprzedaż Mieszkanie Mikołaja Reja, Borne Sulinowo, pow. szczecinecki
HIJY677
Sprzedaż
Mieszkanie
375 000 PLN 5 156 za m2
Mikołaja Reja, Borne Sulinowo, pow. szczecinecki
3 pokoje
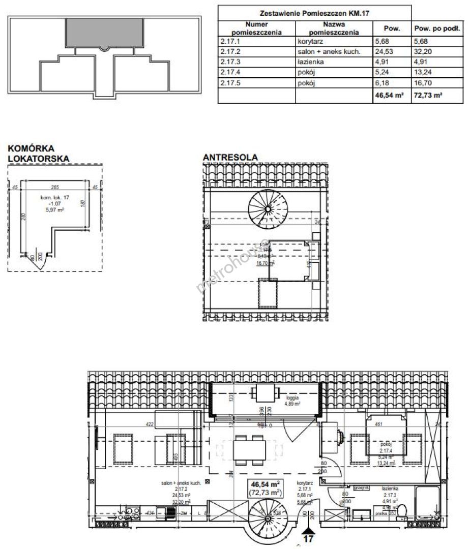
73 m²
2/2
Zapłacisz PLN/miesięcznej raty kredytu
Oprocentowanie %
O nieruchomości
Borne Sulinowo „Willa NOVA” wyjątkowa inwestycja deweloperska dla wymagających klientów . Jako wyłączne biuro sprzedaży dewelopera M M Prestiż przedstawiamy Państwu najnowszą ofertę budynku wielorodzinnego przy ul. Reja 17 w Bornem Sulinowie.

„Willa NOVA” to kolejna inwestycja deweloperska renomowanej i znanej od lat na lokalnym rynku firmy MM Prestiż s.c. Kameralny budynek położony przy ul. Reja 17 zostanie zaadoptowany w stylu willowym...
Pokaż więcej
Podstawowe informacje
Stan nieruchomości:
Deweloperski
Rok budowy:
1939
Podłoga:
2
Liczba pięter:
2
Winda:
Nie
Stan elewacji:
Nie określono
Stan budynku wewnątrz:
Deweloperski
Stan oświetlenia:
Nie określono
Parking:
Nie
Balkon:
Tak
Podłoga:
Podwórko
Strony świata:
D
Ogrzewanie:
Miejskie
Certyfikat energetyczny:
Nie określono