.
Patrycja Kobyłecka
Master lider
Zapytaj o ofertę
Zadzwoń do Agenta
Zapytaj o ofertę
Skontaktuj się z Agentem Metrohosue i umów się na prezentację
Wybierz preferowaną datę
Sprzedaż Dom Pruszków
PIKA343
Sprzedaż
Bliźniak
Obniżka ceny
1 760 000 PLN 7 333 za m2
Pruszków
9 pokoi
240 m²
240 m² działka
Zapłacisz PLN/miesięcznej raty kredytu
Oprocentowanie %
O nieruchomości
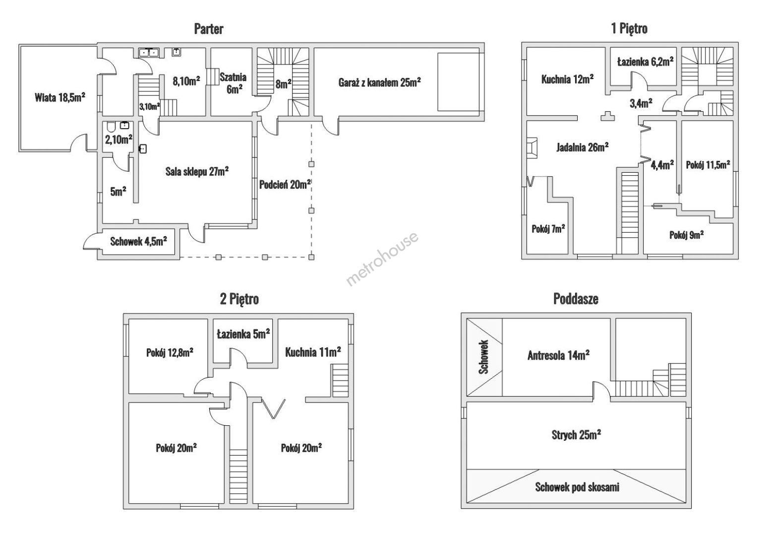
Bliźniak w świetnej lokalizacji z wynajętym lokalem usługowym oraz dwoma mieszkaniami. Dom o powierchni ok. 240 m2 ma bardzo duży potencjał znajduje się w świetnej lokalizacji - Pruszków ul. 3 maja!

⦁ Parter: Lokal użytkowy (z osobnym wejściem) z zapleczem, kotłownia, dwupoziomowy magazyn, szatnia, klatka schodowa
⦁ 1 piętro: Kuchnia, łazienka, jadalnia z kominkiem, 3 pokoje
⦁ 2 piętro: Kuchnia, łazienka, 3 pokoje
⦁ Poddasze:...
Pokaż więcej
Podstawowe informacje
Stan nieruchomości:
Nie określono
Rok budowy:
1994
Liczba pięter:
2
Stan elewacji:
Nie określono
Stan budynku wewnątrz:
Do wprowadzenia
Stan oświetlenia:
Nie określono
Podłoga:
Nie określono
Ogrzewanie:
Gaz miejski
Materiał:
Cegła
Certyfikat energetyczny:
Nie określono
Parking:
Nie
Udogodnienia
Dobra komunikacja
Bliskość transportu publicznego
Domofon
Szkoła