.
Bartosz Baer
Doradca
Zapytaj o ofertę
Zadzwoń do Agenta
Zapytaj o ofertę
Skontaktuj się z Agentem Metrohosue i umów się na prezentację
Wybierz preferowaną datę
Sprzedaż Mieszkanie Włochy, Warszawa
PR015588/LK/43518
Sprzedaż
Mieszkanie
Rynek pierwotny
968 098 PLN 968 098 za m2
Włochy, Warszawa
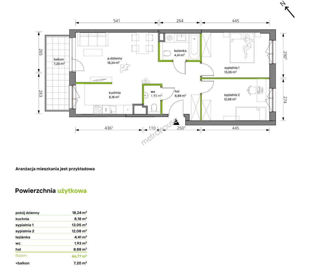
3 pokoje
67 m²
1/5
Zapłacisz PLN/miesięcznej raty kredytu
Oprocentowanie %
O nieruchomości
Nowoczesne osiedle mieszkaniowe realizowane w warszawskiej dzielnicy Włochy. Inwestycja charakteryzuje się nowoczesną architekturą i wysokim standardem wykończenia. Mieszkania wyposażone są w przestronne balkony, loggie lub tarasy, zapewniając dodatkową przestrzeń do wypoczynku. Osiedle zlokalizowane jest w zielonej części dzielnicy, w otoczeniu parków, co gwarantuje ciszę i komfort życia..

Ceny przynależności: 

Komórka...
Pokaż więcej
Podstawowe informacje
Stan nieruchomości:
Rok budowy:
2027
Podłoga:
1
Liczba pięter:
5
Winda:
Nie
Stan elewacji:
Nie określono
Stan budynku wewnątrz:
Stan oświetlenia:
Nie określono
Parking:
Nie
Balkon:
Tak
Podłoga:
Nie określono
Strony świata:
Nie określono
Ogrzewanie:
Gaz miejski
Certyfikat energetyczny:
Nie określono
Udogodnienia
Monitoring