.
Bartosz Baer
Doradca
Zapytaj o ofertę
Zadzwoń do Agenta
Zapytaj o ofertę
Skontaktuj się z Agentem Metrohosue i umów się na prezentację
Wybierz preferowaną datę
Sprzedaż Mieszkanie Bemowo, Warszawa
PR016033/LK/32652
Sprzedaż
Mieszkanie
Rynek pierwotny
1 016 104 PLN 1 016 104 za m2
Bemowo, Warszawa
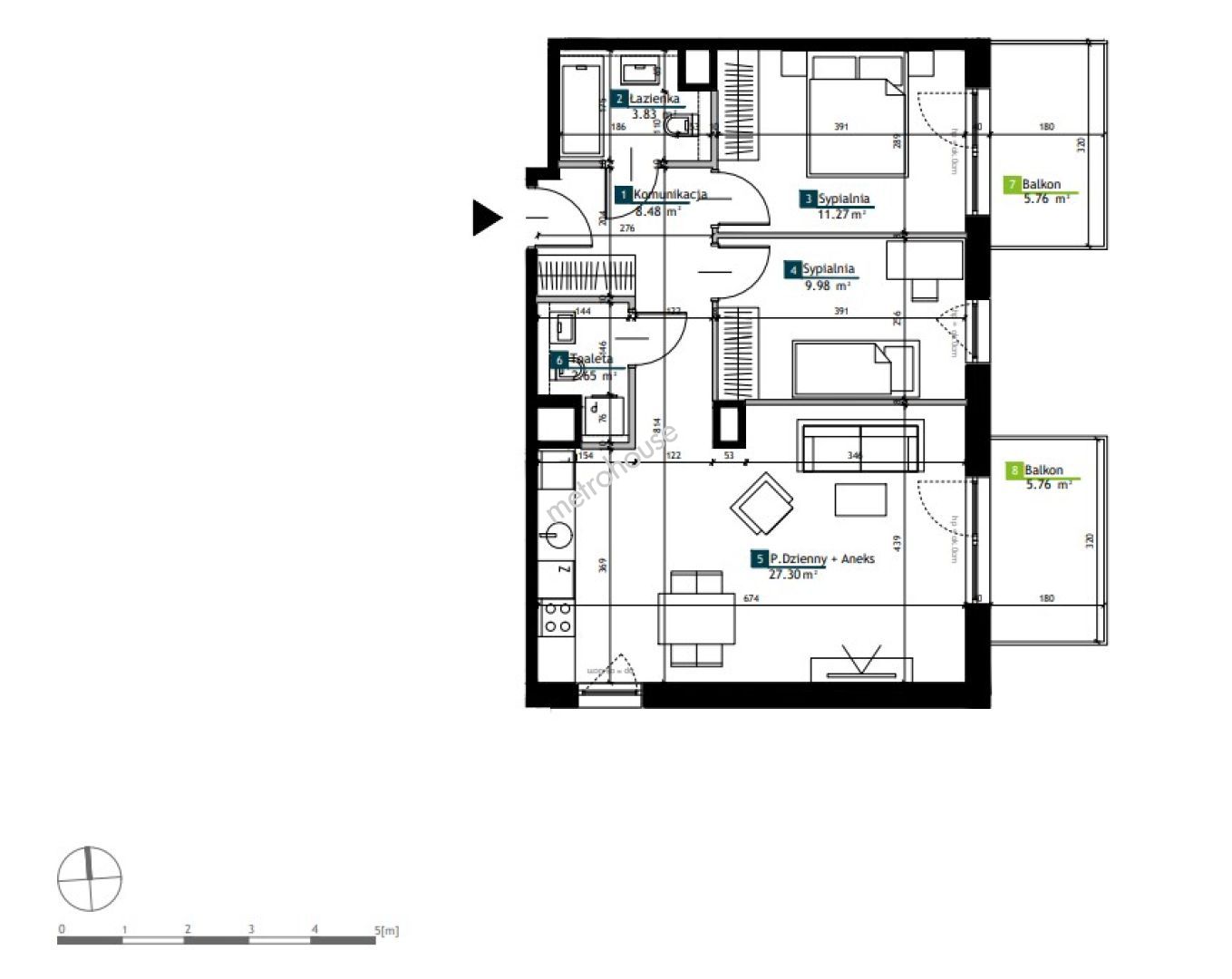
3 pokoje
64 m²
2/3
Zapłacisz PLN/miesięcznej raty kredytu
Oprocentowanie %
O nieruchomości
Nowoczesne osiedle na Bemowie, zaprojektowane z myślą o wygodzie mieszkańców i pełne pozytywnej energii. Położone w spokojnej części dzielnicy, zapewnia szybki dostęp do metra oraz łatwe dotarcie do najważniejszych atrakcji miasta. To przyjazna przestrzeń mieszkalna, w której kameralna zabudowa oraz jasne, przestronne wnętrza tworzą doskonałe warunki do codziennego życia.

Na terenie inwestycji powstaną dwa...
Pokaż więcej
Podstawowe informacje
Stan nieruchomości:
Rok budowy:
2027
Podłoga:
2
Liczba pięter:
3
Winda:
Nie
Stan elewacji:
Nie określono
Stan budynku wewnątrz:
Stan oświetlenia:
Nie określono
Parking:
Nie
Balkon:
Tak
Podłoga:
Nie określono
Strony świata:
Nie określono
Ogrzewanie:
Miejskie
Certyfikat energetyczny:
Nie określono