.
Monika Jaworska
Agent
Zapytaj o ofertę
Zadzwoń do Agenta
Zapytaj o ofertę
Skontaktuj się z Agentem Metrohosue i umów się na prezentację
Wybierz preferowaną datę
Sprzedaż Mieszkanie Mielno, pow. koszaliński
PR021670/LK/50734
Sprzedaż
Mieszkanie
Rynek pierwotny
811 336 PLN 811 336 za m2
Mielno, pow. koszaliński
2 pokoje
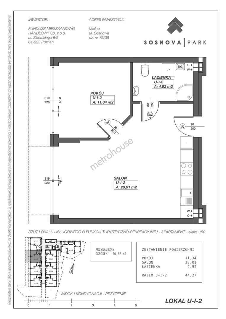
44 m²
0/3
Zapłacisz PLN/miesięcznej raty kredytu
Oprocentowanie %
O nieruchomości
Atrakcyjna inwestycja zlokalizowana w Mielnie, w otoczeniu malowniczej przyrody oraz tuż przy nadmorskiej promenadzie. Jej niewątpliwym atutem jest bliskość szerokiej, piaszczystej plaży oraz urokliwych tras spacerowych i rowerowych biegnących wzdłuż jeziora Jamno. Projekt obejmuje czterokondygnacyjny budynek z windą, w którym zaplanowano 30 nowoczesnych lokali mieszkalno-apartamentowych o powierzchniach od 44 m² do...
Pokaż więcej
Podstawowe informacje
Stan nieruchomości:
Rok budowy:
2025
Podłoga:
0
Liczba pięter:
3
Winda:
Nie
Stan elewacji:
Nie określono
Stan budynku wewnątrz:
Stan oświetlenia:
Nie określono
Parking:
Nie
Balkon:
Tak
Podłoga:
Nie określono
Strony świata:
Nie określono
Ogrzewanie:
Gaz miejski
Certyfikat energetyczny:
Nie określono
Udogodnienia
Obszar zamknięty
Monitoring