.
Dominika Lewandowska
Agent
Zapytaj o ofertę
Zadzwoń do Agenta
Zapytaj o ofertę
Skontaktuj się z Agentem Metrohosue i umów się na prezentację
Wybierz preferowaną datę
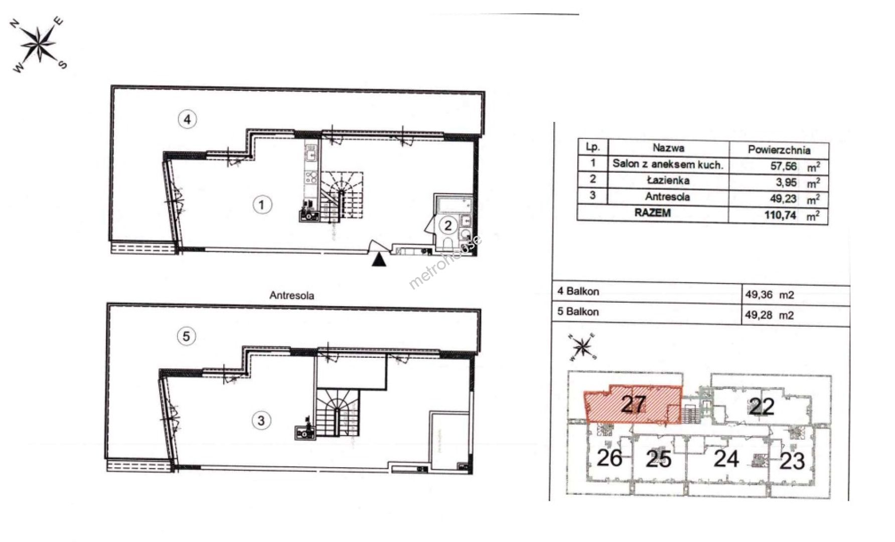
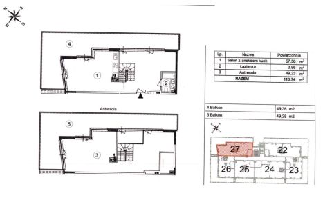
Sprzedaż Mieszkanie Zegrze, pow. legionowski
PR034875/LK/42056
Sprzedaż
Mieszkanie
Rynek pierwotny
1 265 990 PLN 1 265 990 za m2
Zegrze, pow. legionowski
3 pokoje
110 m²
3/3
Zapłacisz PLN/miesięcznej raty kredytu
Oprocentowanie %
O nieruchomości
WIRTUALNY SPACER

Kameralne osiedle ekskluzywnych apartamentowców, wychodzące naprzeciw marzeniom klientów o posiadaniu własnego mieszkania. Inwestycja zlokalizowana jest w bezpośrednim sąsiedztwie zbiornika wodnego – Zalewu Zegrzyńskiego, od strony południowo-zachodniej przebiega linia brzegowa. Cały obszar znajduje się w strefie Warszawskiego Obszaru Chronionego. Inwestycja obejmuje trzy czterokondygnacyjne budynki, przy...
Pokaż więcej
Podstawowe informacje
Stan nieruchomości:
Rok budowy:
2025
Podłoga:
3
Liczba pięter:
3
Winda:
Nie
Stan elewacji:
Nie określono
Stan budynku wewnątrz:
Stan oświetlenia:
Nie określono
Parking:
Nie
Balkon:
Tak
Podłoga:
Nie określono
Strony świata:
Nie określono
Ogrzewanie:
Certyfikat energetyczny:
Nie określono
Udogodnienia
Alarm
Monitoring