.
Monika Jaworska
Agent
Zapytaj o ofertę
Zadzwoń do Agenta
Zapytaj o ofertę
Skontaktuj się z Agentem Metrohosue i umów się na prezentację
Wybierz preferowaną datę
Sprzedaż Mieszkanie Nad Potokiem, Radom
PR035725/LK/45839
Sprzedaż
Mieszkanie
Rynek pierwotny
461 731 PLN 461 731 za m2
Nad Potokiem, Radom
3 pokoje
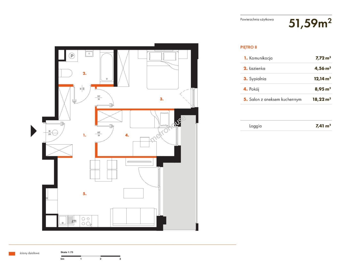
52 m²
8/9
Zapłacisz PLN/miesięcznej raty kredytu
Oprocentowanie %
O nieruchomości
Nowoczesna inwestycja położona zaledwie 10 minut od Parku Leśniczówka i blisko centrum Radomia. To idealne miejsce dla osób ceniących wygodę i wysoki standard życia. W pobliżu znajduje się wszystko, co potrzebne na co dzień. Mieszkania są przestronne, dobrze doświetlone dzięki dużym oknom i narożnym przeszkleniom, a z wyższych pięter roztacza się zachwycający widok na panoramę miasta. Na terenie inwestycji przewidziano miejsca postojowe, plac...
Pokaż więcej
Podstawowe informacje
Stan nieruchomości:
Rok budowy:
2025
Podłoga:
8
Liczba pięter:
9
Winda:
Nie
Stan elewacji:
Nie określono
Stan budynku wewnątrz:
Stan oświetlenia:
Nie określono
Parking:
Nie
Balkon:
Nie
Podłoga:
Nie określono
Strony świata:
Nie określono
Ogrzewanie:
Miejskie
Certyfikat energetyczny:
Nie określono