.
Monika Jaworska
Agent
Zapytaj o ofertę
Zadzwoń do Agenta
Zapytaj o ofertę
Skontaktuj się z Agentem Metrohosue i umów się na prezentację
Wybierz preferowaną datę
Sprzedaż Mieszkanie Śródmieście, Łódź
PR050156/LK/35735
Sprzedaż
Mieszkanie
Rynek pierwotny
367 513 PLN 367 513 za m2
Śródmieście, Łódź
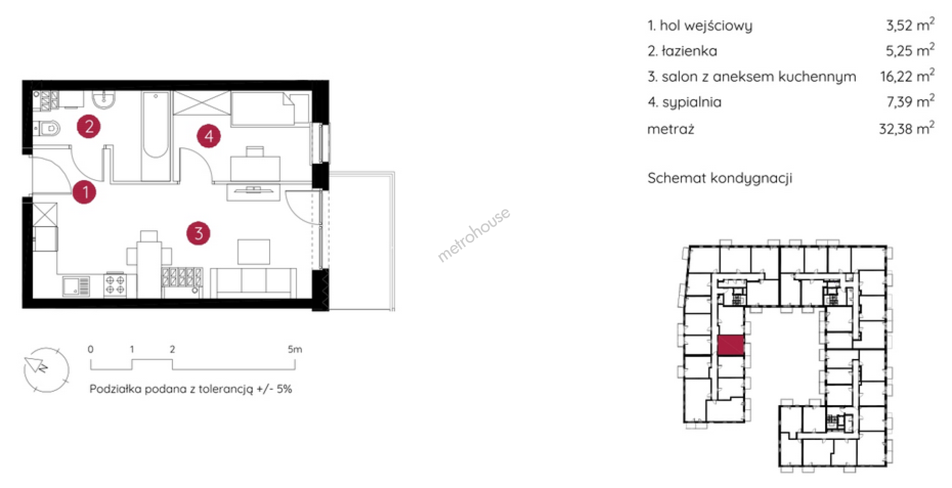
2 pokoje
32 m²
4/4
Zapłacisz PLN/miesięcznej raty kredytu
Oprocentowanie %
O nieruchomości
Nowocześnie zaprojektowana inwestycja z praktycznymi udogodnieniami odpowiadającymi na potrzeby najbardziej wymagających mieszkańców. Pakiet antysmogowy zatrzyma śródmiejskie zanieczyszczenia na zewnątrz, a Home Management System pozwoli zarządzać mediami z poziomu aplikacji mobilnej. Stacja ładowania pojazdów elektrycznych zaadresuje z kolei preferencje właścicieli aut z napędem elektrycznym. Zielony dach przyczyni się zaś do oczyszczania...
Pokaż więcej
Podstawowe informacje
Stan nieruchomości:
Rok budowy:
2026
Podłoga:
4
Liczba pięter:
4
Winda:
Nie
Stan elewacji:
Nie określono
Stan budynku wewnątrz:
Stan oświetlenia:
Nie określono
Parking:
Nie
Balkon:
Nie
Podłoga:
Nie określono
Strony świata:
Nie określono
Ogrzewanie:
Miejskie
Certyfikat energetyczny:
Nie określono
Udogodnienia
Obszar zamknięty