.
Monika Jaworska
Agent
Zapytaj o ofertę
Zadzwoń do Agenta
Zapytaj o ofertę
Skontaktuj się z Agentem Metrohosue i umów się na prezentację
Wybierz preferowaną datę
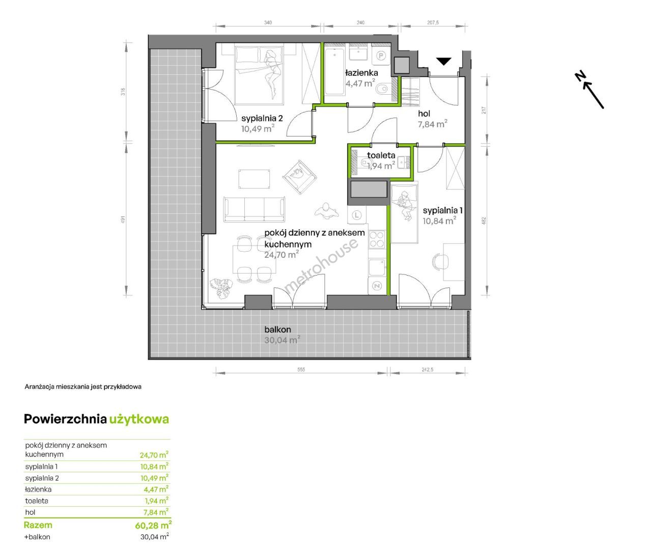
Sprzedaż Mieszkanie Grunwald Południe, Poznań
PR052417/LK/50947
Sprzedaż
Mieszkanie
Rynek pierwotny
910 197 PLN 910 197 za m2
Grunwald Południe, Poznań
3 pokoje
60 m²
2/6
Zapłacisz PLN/miesięcznej raty kredytu
Oprocentowanie %
O nieruchomości
Kameralne osiedle położone w jednej z bardziej cenionych części Poznania – na Grunwaldzie, tuż przy Lasku Marcelińskim. Dzielnicę wybierają zarówno rodziny z dziećmi, ze względu na liczne zielone tereny rekreacyjne, ale także młodzi, którzy cenią sobie dostępność kawiarni, klubów fitness, sklepów i możliwość łatwego skomunikowania z resztą miasta. Inwestycja obejmuje budynek z szeroką gamą mieszkań, od 1- do...
Pokaż więcej
Podstawowe informacje
Stan nieruchomości:
Rok budowy:
2028
Podłoga:
2
Liczba pięter:
6
Winda:
Nie
Stan elewacji:
Nie określono
Stan budynku wewnątrz:
Stan oświetlenia:
Nie określono
Parking:
Nie
Balkon:
Tak
Podłoga:
Nie określono
Strony świata:
Nie określono
Ogrzewanie:
Miejskie
Certyfikat energetyczny:
Nie określono