.
Bartosz Baer
Doradca
Zapytaj o ofertę
Zadzwoń do Agenta
Zapytaj o ofertę
Skontaktuj się z Agentem Metrohosue i umów się na prezentację
Wybierz preferowaną datę
Sprzedaż Mieszkanie Bemowo, Warszawa
PR057397/LK/48287
Sprzedaż
Mieszkanie
Rynek pierwotny
1 414 987 PLN 1 414 987 za m2
Bemowo, Warszawa
4 pokoje
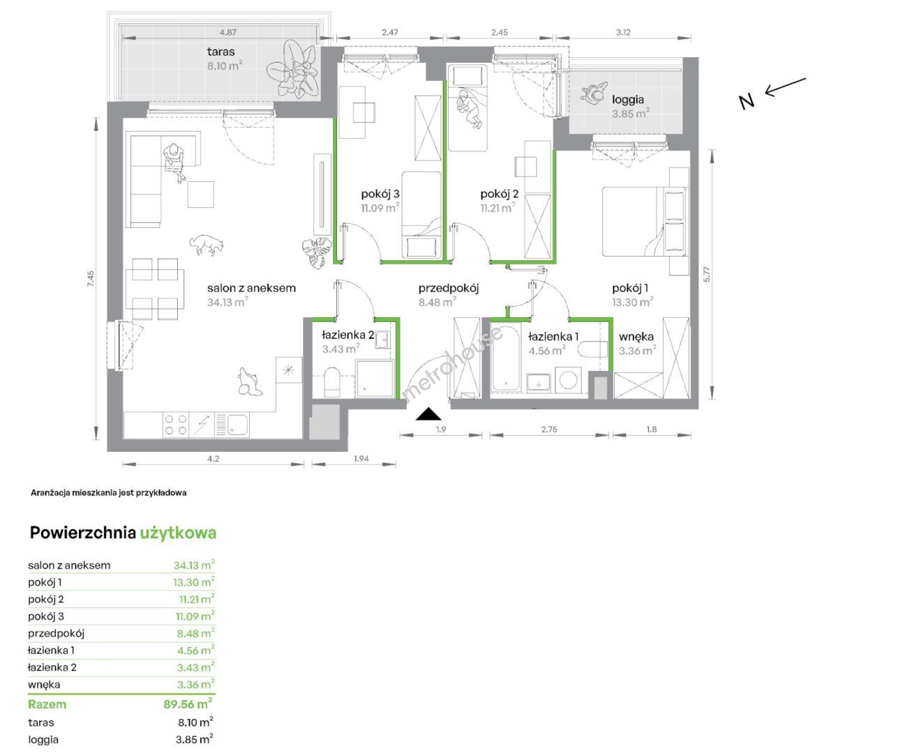
90 m²
1/6
Zapłacisz PLN/miesięcznej raty kredytu
Oprocentowanie %
O nieruchomości
Wieloetapowa inwestycja mieszkaniowa realizowana na warszawskim Bemowie. Doskonała lokalizacja, pełna infrastruktura oraz szybki dojazd do trasy S8 sprawiają, że to miejsce łączy komfort codziennego życia z wysokim potencjałem inwestycyjnym. W budynku IV etapu powstanie 196 mieszkań o powierzchniach od 28 do 144 mkw. z balkonami, ogródkami i tarasami. W ofercie IV etapu dostępne są funkcjonalne układy od 1 do 5 pokoi, Idealnych zarówno dla...
Pokaż więcej
Podstawowe informacje
Stan nieruchomości:
Rok budowy:
2027
Podłoga:
1
Liczba pięter:
6
Winda:
Nie
Stan elewacji:
Nie określono
Stan budynku wewnątrz:
Stan oświetlenia:
Nie określono
Parking:
Nie
Balkon:
Tak
Podłoga:
Nie określono
Strony świata:
Nie określono
Ogrzewanie:
Miejskie
Certyfikat energetyczny:
Nie określono