.
Bartosz Baer
Doradca
Zapytaj o ofertę
Zadzwoń do Agenta
Zapytaj o ofertę
Skontaktuj się z Agentem Metrohosue i umów się na prezentację
Wybierz preferowaną datę
Sprzedaż Mieszkanie Targówek, Warszawa
PR079163/LK/25073
Sprzedaż
Mieszkanie
Rynek pierwotny
754 692 PLN 754 692 za m2
Targówek, Warszawa
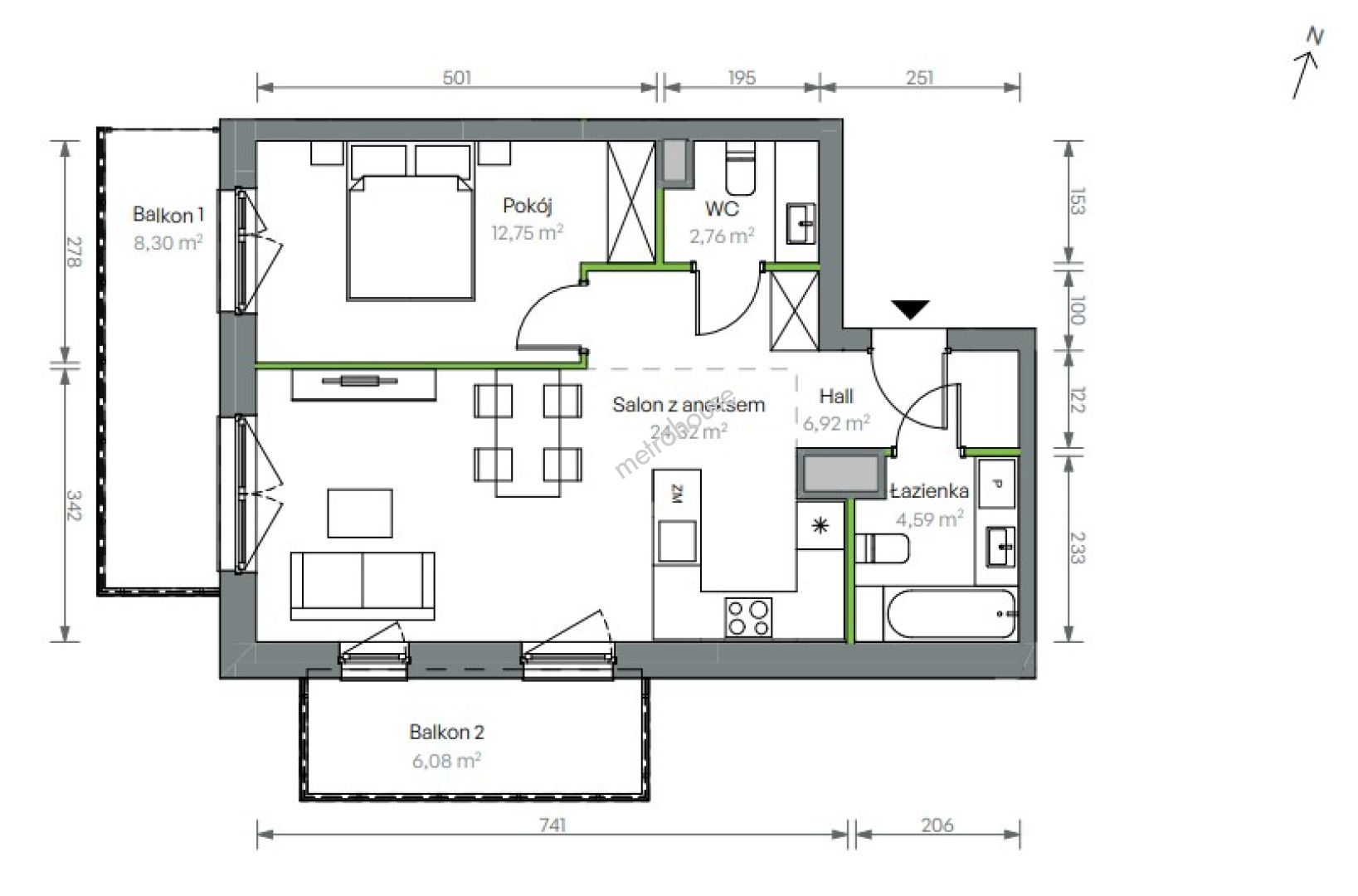
2 pokoje
51 m²
4/7
Zapłacisz PLN/miesięcznej raty kredytu
Oprocentowanie %
O nieruchomości
Nowoczesne osiedle mieszkaniowe zlokalizowane w warszawskiej dzielnicy Targówek. Projekt obejmuje mieszkania o zróżnicowanych metrażach, od kawalerek po przestronne mieszkania z ogródkami. Architektura inwestycji łączy nowoczesny design z funkcjonalnością, oferując komfortowe warunki życia. Mieszkania wyposażone są w balkony, loggie, tarasy lub ogródki, zapewniając dodatkową przestrzeń do wypoczynku. Osiedle charakteryzuje się przestronnymi...
Pokaż więcej
Podstawowe informacje
Stan nieruchomości:
Rok budowy:
2026
Podłoga:
4
Liczba pięter:
7
Winda:
Nie
Stan elewacji:
Nie określono
Stan budynku wewnątrz:
Stan oświetlenia:
Nie określono
Parking:
Nie
Balkon:
Tak
Podłoga:
Nie określono
Strony świata:
Nie określono
Ogrzewanie:
Miejskie
Certyfikat energetyczny:
Nie określono