.
Dariusz Wójcikowski
Kierownik
Zapytaj o ofertę
Zadzwoń do Agenta
Zapytaj o ofertę
Skontaktuj się z Agentem Metrohosue i umów się na prezentację
Wybierz preferowaną datę
Sprzedaż Mieszkanie Śródmieście, Łódź
PR082396/LK/33233
Sprzedaż
Mieszkanie
Rynek pierwotny
1 625 436 PLN 1 625 436 za m2
Śródmieście, Łódź
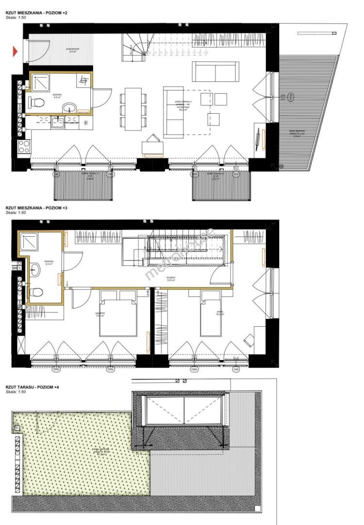
3 pokoje
100 m²
2/5
Zapłacisz PLN/miesięcznej raty kredytu
Oprocentowanie %
O nieruchomości
Unikalna inwestycja zlokalizowana w historycznej dzielnicy Łodzi, Śródmieściu tuż przy łódzkiej Manufakturze. To miejsce, gdzie nowoczesność spotyka się z bogatą historią, tworząc wyjątkową przestrzeń do życia. Pofabryczne budynki wraz z wielkomiejską kamienicą w stylu neorenesansowym wpisane zostały do Gminnej Ewidencji Zabytków. Nasz projekt rewitalizacji czerpie więc z piękna historii tworząc unikalne...
Pokaż więcej
Podstawowe informacje
Stan nieruchomości:
Rok budowy:
2027
Podłoga:
2
Liczba pięter:
5
Winda:
Nie
Stan elewacji:
Nie określono
Stan budynku wewnątrz:
Stan oświetlenia:
Nie określono
Parking:
Nie
Balkon:
Nie
Podłoga:
Nie określono
Strony świata:
Nie określono
Ogrzewanie:
Miejskie
Certyfikat energetyczny:
Nie określono
Udogodnienia
Recepcja
Monitoring