.
Alina Zybała-Melosik
Kierownik
Zapytaj o ofertę
Zadzwoń do Agenta
Zapytaj o ofertę
Skontaktuj się z Agentem Metrohosue i umów się na prezentację
Wybierz preferowaną datę
Sprzedaż Mieszkanie Wilda, Poznań
PR084373/LK/33337
Sprzedaż
Mieszkanie
Rynek pierwotny
511 540 PLN 511 540 za m2
Wilda, Poznań
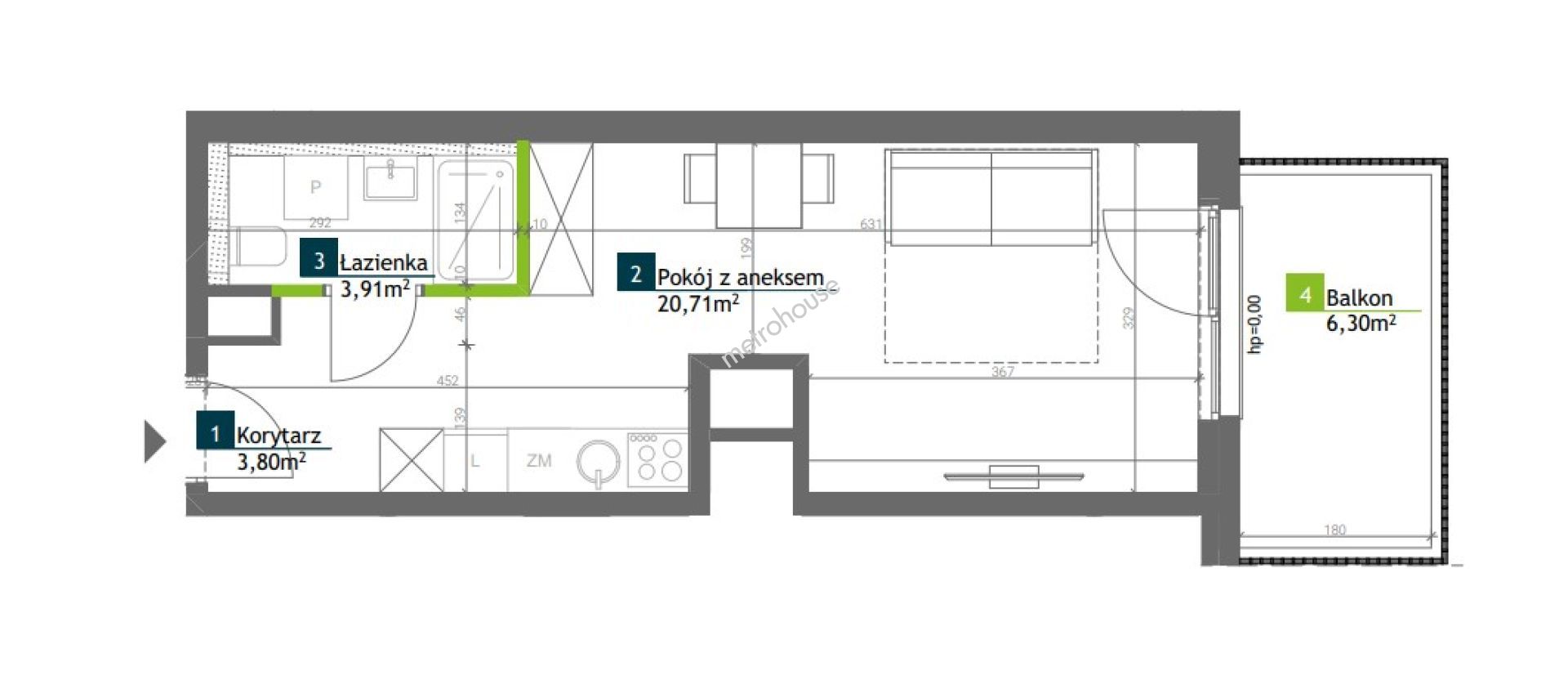
1 pokój
28 m²
1/5
Zapłacisz PLN/miesięcznej raty kredytu
Oprocentowanie %
O nieruchomości
Kameralny budynek o wysokim standardzie, zlokalizowany w prestiżowej części Poznania, która graniczy ze Starym Miastem. W budynku powstanie 58 mieszkań o metrażach od 29 do 133 mkw. i rozkładach od 1 do 5 pokoi. Na uwagę zasługują tarasy, które będą przynależały do mieszkań na ostatniej kondygnacji. Na parterze budynku znajdą się lokale usługowe. W standardzie mieszkańcy otrzymają system...
Pokaż więcej
Podstawowe informacje
Stan nieruchomości:
Rok budowy:
2026
Podłoga:
1
Liczba pięter:
5
Winda:
Nie
Stan elewacji:
Nie określono
Stan budynku wewnątrz:
Stan oświetlenia:
Nie określono
Parking:
Nie
Balkon:
Nie
Podłoga:
Nie określono
Strony świata:
Nie określono
Ogrzewanie:
Miejskie
Certyfikat energetyczny:
Nie określono
Udogodnienia
Monitoring