.
Bartosz Baer
Doradca
Zapytaj o ofertę
Zadzwoń do Agenta
Zapytaj o ofertę
Skontaktuj się z Agentem Metrohosue i umów się na prezentację
Wybierz preferowaną datę
Sprzedaż Mieszkanie Bielany, Warszawa
PR087961/LK/38222
Sprzedaż
Mieszkanie
Rynek pierwotny
1 326 537 PLN 1 326 537 za m2
Bielany, Warszawa
4 pokoje
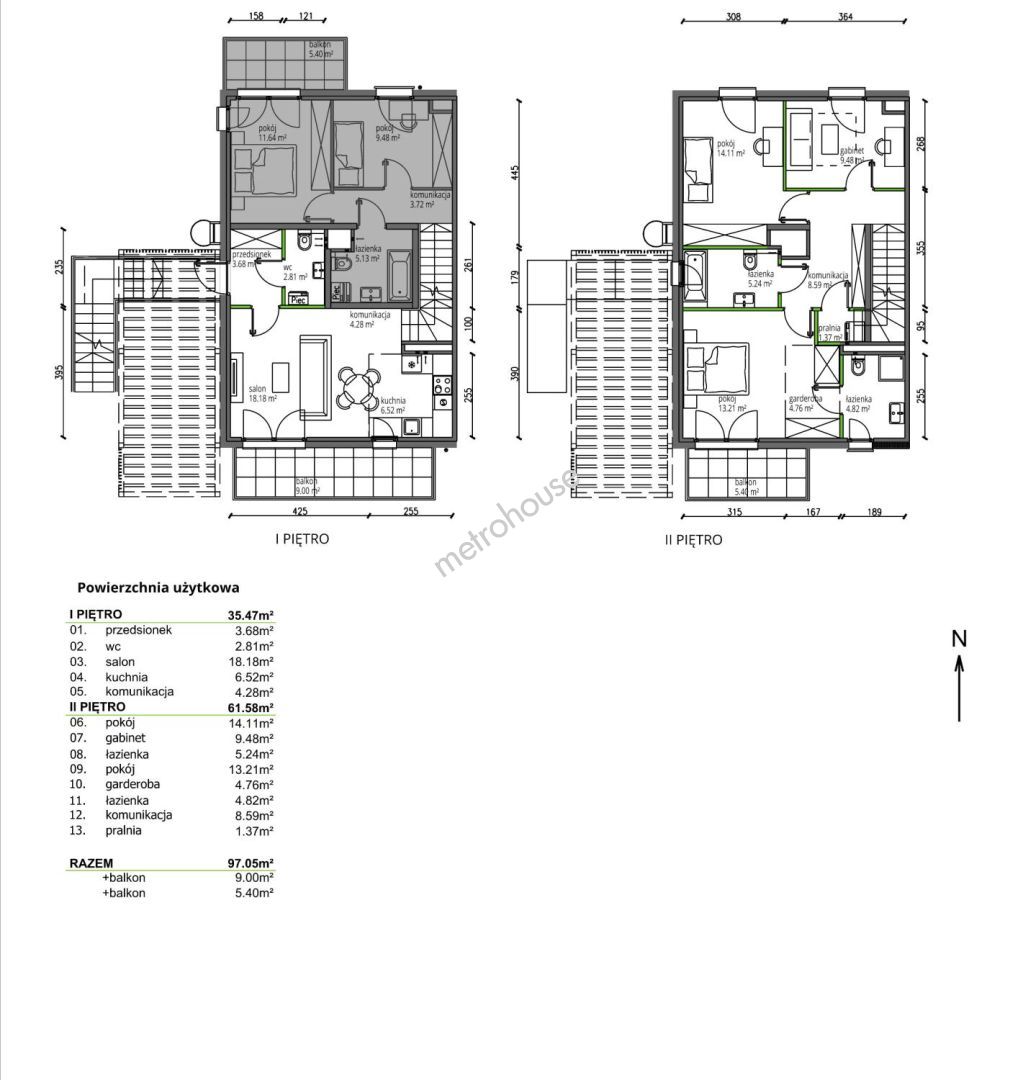
93 m²
1/1
Zapłacisz PLN/miesięcznej raty kredytu
Oprocentowanie %
O nieruchomości
Nowoczesne osiedle mieszkaniowe na warszawskich Młocinach w dzielnicy Bielany. Inwestycja składa się z kameralnych, 3-kondygnacyjnych willi miejskich o eleganckiej i dopracowanej architekturze. Osiedle oferuje dwupoziomowe apartamenty 3- i 4-pokojowe z tarasami lub ogrodami oraz domy w zabudowie bliźniaczej z garażem i przynależnym ogrodem. Położenie w otoczeniu niskiej, jednorodzinnej zabudowy zapewnia spokojną, kameralną atmosferę, nie...
Pokaż więcej
Podstawowe informacje
Stan nieruchomości:
Rok budowy:
2026
Podłoga:
1
Liczba pięter:
1
Winda:
Nie
Stan elewacji:
Nie określono
Stan budynku wewnątrz:
Stan oświetlenia:
Nie określono
Parking:
Nie
Balkon:
Tak
Podłoga:
Nie określono
Strony świata:
Nie określono
Ogrzewanie:
Miejskie
Certyfikat energetyczny:
Nie określono