.
Bartosz Baer
Doradca
Zapytaj o ofertę
Zadzwoń do Agenta
Zapytaj o ofertę
Skontaktuj się z Agentem Metrohosue i umów się na prezentację
Wybierz preferowaną datę
Sprzedaż Mieszkanie Włochy, Warszawa
PR090587/LK/50307
Sprzedaż
Mieszkanie
Rynek pierwotny
1 007 906 PLN 1 007 906 za m2
Włochy, Warszawa
3 pokoje
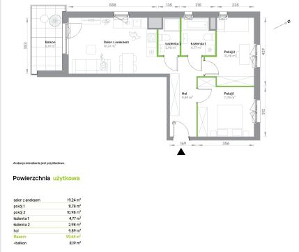
60 m²
3/5
Zapłacisz PLN/miesięcznej raty kredytu
Oprocentowanie %
O nieruchomości
Jedna z nowych inwestycji mieszkaniowych w Warszawie, oferująca świetną lokalizację i atrakcyjny potencjał inwestycyjny. Z oferty mogą skorzystać zarówno osoby szukające mieszkania dla siebie, na stałe, jak też pod wynajem. Projekt obejmuje dwa budynki w formie kaskadowej, 4-5-6 kondygnacji. W dwóch etapach budowy powstaną w sumie 264 lokale mieszkalne (111 w 1. etapie i 153 w 2. etapie) oraz jeden lokal usługowy. Zaplanowano mieszkania o...
Pokaż więcej
Podstawowe informacje
Stan nieruchomości:
Rok budowy:
2027
Podłoga:
3
Liczba pięter:
5
Winda:
Nie
Stan elewacji:
Nie określono
Stan budynku wewnątrz:
Stan oświetlenia:
Nie określono
Parking:
Nie
Balkon:
Tak
Podłoga:
Nie określono
Strony świata:
Nie określono
Ogrzewanie:
Miejskie
Certyfikat energetyczny:
Nie określono