.
Bartosz Poślad
Kierownik
Zapytaj o ofertę
Zadzwoń do Agenta
Zapytaj o ofertę
Skontaktuj się z Agentem Metrohosue i umów się na prezentację
Wybierz preferowaną datę
Sprzedaż Dom Norwida, Toruń
SDTERU827
Sprzedaż
Dom mieszkalny
Obniżka ceny
Tylko u nas
950 000 PLN 4 264 za m2
Norwida, Toruń
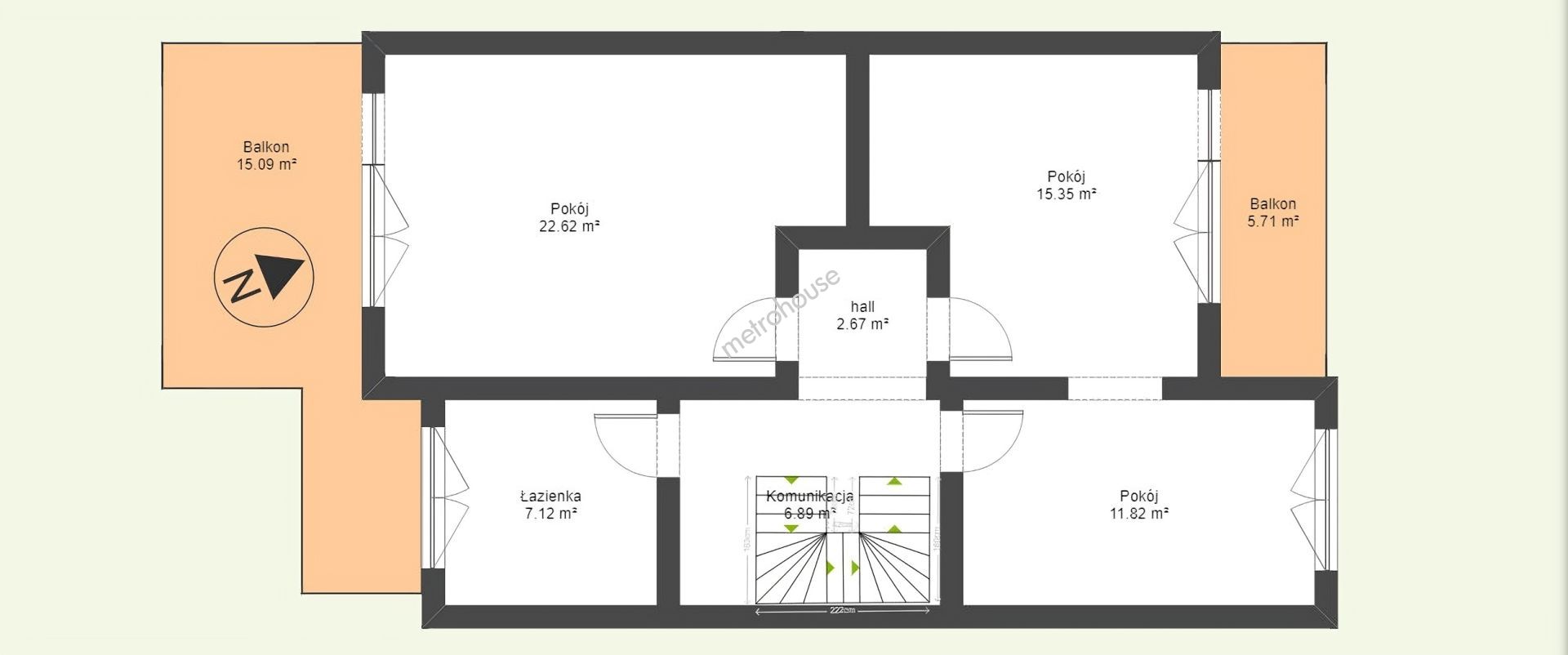
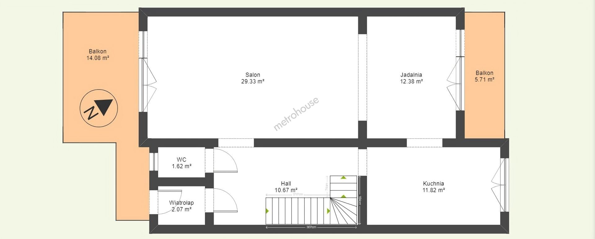
7 pokoi
223 m²
187 m² działka
Zapłacisz PLN/miesięcznej raty kredytu
Oprocentowanie %
O nieruchomości
Przedstawiam ofertę sprzedaży przestronnego domu zlokalizowanego przy ul. Norwida, na Osiedlu Brzezina w Toruniu.

Brzezina to kameralne osiedle domów jednorodzinnych oraz szeregowców, położone z dala od głównej arterii w otoczeniu lasu. Zdecydowanie jest to enklawa ciszy oraz spokoju, która pozwala odetchnąć od codziennego zgiełku miasta.


Sprzedawany dom znajduje się na niespełna 200 m2...
Pokaż więcej
Podstawowe informacje
Stan nieruchomości:
Nie określono
Rok budowy:
2000
Liczba pięter:
2
Stan elewacji:
4 - Do zamieszkania
Stan budynku wewnątrz:
Do odświeżenia
Stan oświetlenia:
Słoneczne
Podłoga:
Inne budynki
Ogrzewanie:
Gaz miejski
Materiał:
Cegła
Certyfikat energetyczny:
Nie określono
Parking:
Nie
Udogodnienia
Blisko lasu
Dobra inwestycja
Dobry rozkład
Obszar zamknięty
Wideodomofon