.
Renata Mucha_
Master lider
Zapytaj o ofertę
Zadzwoń do Agenta
Zapytaj o ofertę
Skontaktuj się z Agentem Metrohosue i umów się na prezentację
Wybierz preferowaną datę
Sprzedaż Dom Piaseczno
SDTUPE943
Sprzedaż
Budynek wolnostojący
Tylko u nas
5 338 000 PLN 11 102 za m2
Piaseczno
9 pokoi
481 m²
5338 m² działka
Zapłacisz PLN/miesięcznej raty kredytu
Oprocentowanie %
O nieruchomości
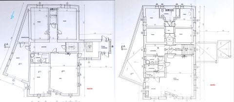
Wyjątkowa nieruchomość w doskonałej lokalizacji w zielonej części Piaseczna. Nietuzinkowa architektura! Dwukondygnacyjny, wolno stojący dom zrealizowany w technologii tradycyjnej.  Przemyślany, funkcjonalny układ pomieszczeń. Na parterze 4 pokoje, 1 łazienka, pomieszenia gospodarcze i przestronne korytarze. Kondygnacje połączone szerokimi, wygodnymi schodami. Reprezentacyjną...
Pokaż więcej
Podstawowe informacje
Stan nieruchomości:
Nie określono
Rok budowy:
2015
Liczba pięter:
2
Stan elewacji:
5 - Do wprowadzenia
Stan budynku wewnątrz:
Do odświeżenia
Stan oświetlenia:
Słoneczne
Podłoga:
Ogród
Ogrzewanie:
Gaz miejski
Materiał:
Beton komórkowy
Certyfikat energetyczny:
Nie określono
Parking:
Nie
Udogodnienia
Blisko lasu
Blisko szkoły
Bliskość obiektów rekreacyjnych
Bliskość transportu publicznego
Częściowo umeblowane
Dobra inwestycja
Dobra komunikacja
Dobry rozkład
Ogólnodostępne miejsca parkingowe
Z ogrodem
Ze sprzętem AGD
Alarm
Drzwi antywłamaniowe
Monitoring
Obszar zamknięty
Apteka
Bank
Basen
Szkoła
Szpital