.
Weronika Białek
Doradca
Zapytaj o ofertę
Zadzwoń do Agenta
Zapytaj o ofertę
Skontaktuj się z Agentem Metrohosue i umów się na prezentację
Wybierz preferowaną datę
Sprzedaż Dom Arciechów, pow. wołomiński
SDVIHY846
Sprzedaż
Bliźniak
Obniżka ceny
600 000 PLN 6 000 za m2
Arciechów, pow. wołomiński
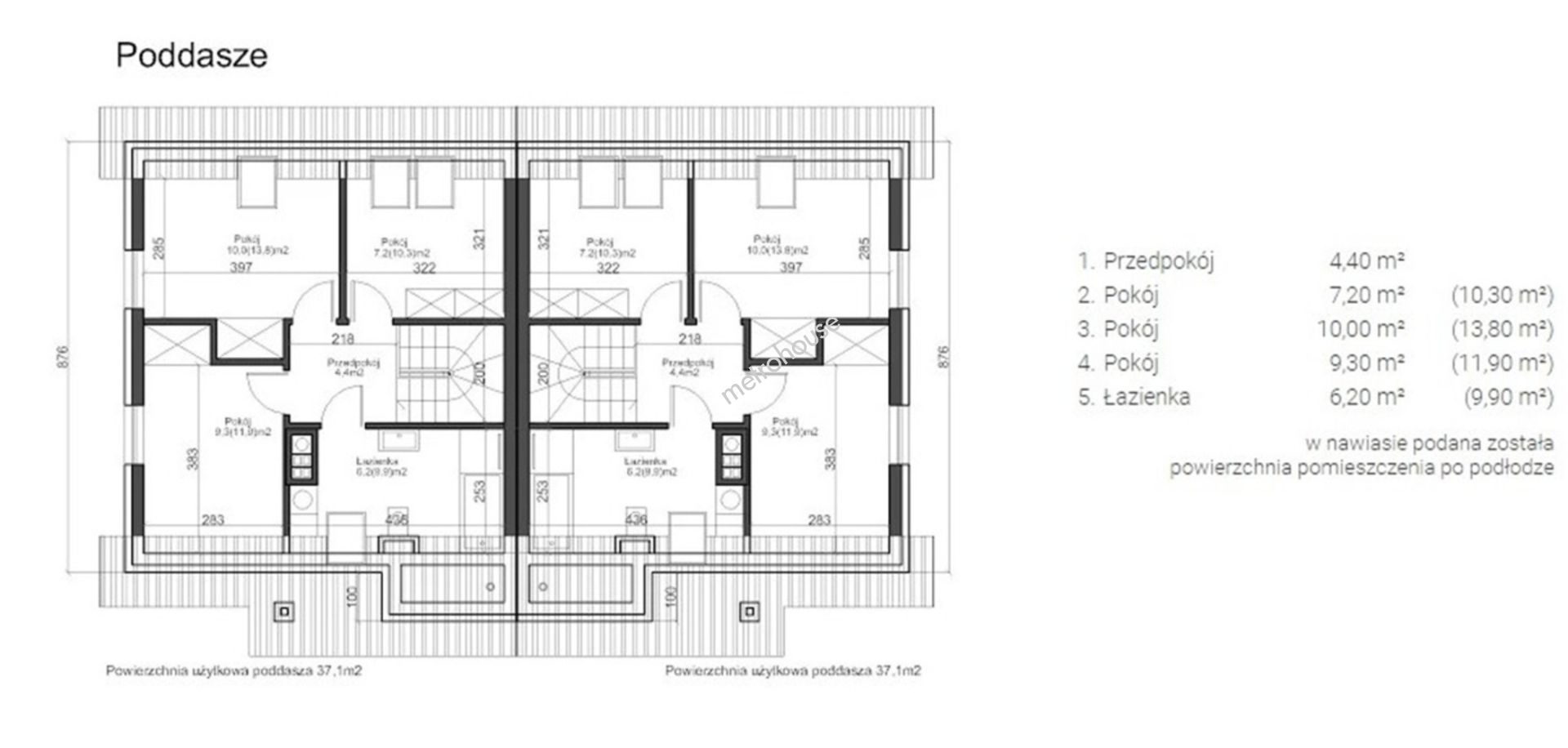
3 pokoje
100 m²
800 m² działka
Zapłacisz PLN/miesięcznej raty kredytu
Oprocentowanie %
O nieruchomości
Nowoczesny dom z ogrodem w otoczeniu natury Arciechów, gmina Radzymin
Idealny dla osób szukających ciszy, prywatności i szybkiego dojazdu do Warszawy

Na sprzedaż dom w zabudowie bliźniaczej na kameralnym osiedlu Starorzecze w Arciechowie w otoczeniu zieleni, w pobliżu Zalewu Zegrzyńskiego, z dala od zgiełku miasta, a jednocześnie z wygodnym dojazdem do Warszawy (ok. 30 min do...
Pokaż więcej
Podstawowe informacje
Stan nieruchomości:
Nie określono
Rok budowy:
2025
Liczba pięter:
2
Stan elewacji:
5 - Do wprowadzenia
Stan budynku wewnątrz:
Deweloperski
Stan oświetlenia:
Słoneczne
Podłoga:
Las
Ogrzewanie:
Pompa ciepła
Materiał:
Pustak
Certyfikat energetyczny:
Nie określono
Parking:
Nie
Udogodnienia
Blisko lasu
Blisko rzeki
Dobra inwestycja
Dobra komunikacja
Dobry rozkład
Piękny widok
Z ogrodem
Alarm
Szkoła