.
Kinga Rosak- Guler
Ekspert
Zapytaj o ofertę
Zadzwoń do Agenta
Zapytaj o ofertę
Skontaktuj się z Agentem Metrohosue i umów się na prezentację
Wybierz preferowaną datę
SMBAKI576
Sprzedaż
Mieszkanie
Obniżka ceny
2 490 000 PLN 20 846 za m2
Klimczaka, Wilanów, Warszawa
4 pokoje
119 m²
1/3
Zapłacisz PLN/miesięcznej raty kredytu
Oprocentowanie %
O nieruchomości
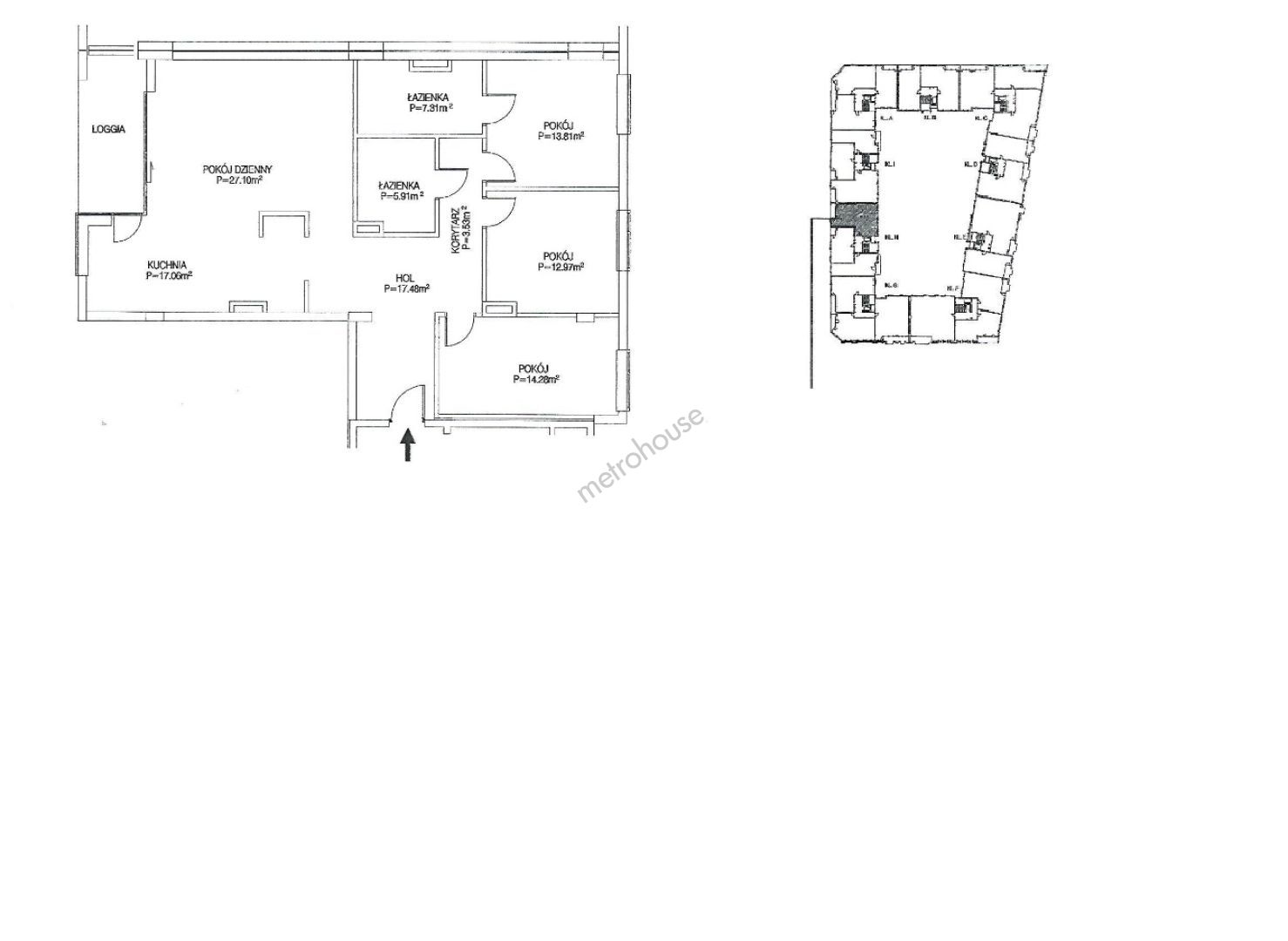
Mam zaszczyt zaprezentować Państwu nową nieruchomość w moim portfelu. To wyjątkowy apartament o powierzchni 119m2, położony w prestiżowej inwestycji Wilanów Investments przy ulicy Klimczaka, w sercu Wilanowa. To idealne miejsce dla par oraz rodzin poszukujących komfortowego i luksusowego miejsca do życia.

Apartament znajduje się w budynku Fountain i składa się z trzech...
Pokaż więcej
Podstawowe informacje
Stan nieruchomości:
Podwyższony
Rok budowy:
2008
Podłoga:
1
Liczba pięter:
3
Winda:
Tak
Stan elewacji:
8- Wysoki standard
Stan budynku wewnątrz:
Wysoki standard
Stan oświetlenia:
Słoneczne
Parking:
Nie
Balkon:
Tak
Podłoga:
Podwórko
Strony świata:
NY
Ogrzewanie:
Miejskie
Certyfikat energetyczny:
Nie określono
Udogodnienia
Blisko parku
Blisko szkoły
Bliskość obiektów rekreacyjnych
Bliskość transportu publicznego
Dobra inwestycja
Luksusowa nieruchomość
Ogólnodostępne miejsca parkingowe
Pełne umeblowane
Pełne wyposażenie
Światłowód
Ze sprzętem AGD
Domofon
Monitoring
Obszar zamknięty
Ochrona
Wideodomofon
Apteka
Bank
Basen
Szkoła
Szpital