.
Anna Górska
Ekspert
Zapytaj o ofertę
Zadzwoń do Agenta
Zapytaj o ofertę
Skontaktuj się z Agentem Metrohosue i umów się na prezentację
Wybierz preferowaną datę
Sprzedaż Mieszkanie Krzemieniecka, Warszawa
SMBOLI636
Sprzedaż
Mieszkanie
Tylko u nas
645 000 PLN 21 003 za m2
Krzemieniecka, Warszawa
1 pokój
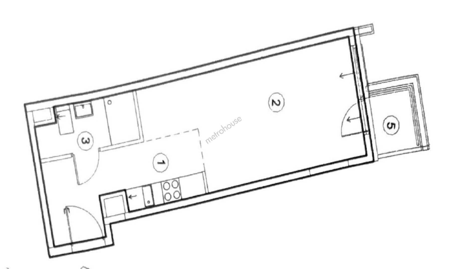
31 m²
2/4
Zapłacisz PLN/miesięcznej raty kredytu
Oprocentowanie %
O nieruchomości
Apartament inwestycyjny z wysokim zwrotem nowoczesne studio z VAT do odliczenia, Metro Park, Bielany.

Na sprzedaż funkcjonalny, nowoczesny apartament typu studio o powierzchni 30,71 m², położony na 2. piętrze w prestiżowej inwestycji Metro Park przy ul. Krzemienieckiej 8 w zielonej i spokojnej części Bielan, a jednocześnie zaledwie kilka minut pieszo od dwóch stacji metra: Słodowiec i...
Pokaż więcej
Podstawowe informacje
Stan nieruchomości:
Do wprowadzenia
Rok budowy:
2022
Podłoga:
2
Liczba pięter:
4
Winda:
Tak
Stan elewacji:
4 - Do zamieszkania
Stan budynku wewnątrz:
Do wprowadzenia
Stan oświetlenia:
Słoneczne
Parking:
Nie
Balkon:
Tak
Podłoga:
Podwórko
Strony świata:
DNY
Ogrzewanie:
Miejskie
Certyfikat energetyczny:
Nie określono
Udogodnienia
Blisko centrum
Bliskość obiektów rekreacyjnych
Bliskość transportu publicznego
Dobra inwestycja
Dobra komunikacja
Dobry rozkład
Luksusowa nieruchomość
Pełne umeblowane
Pełne wyposażenie
Ze sprzętem AGD
Domofon
Monitoring