.
Dominika Brózda
Broker
Zapytaj o ofertę
Zadzwoń do Agenta
Zapytaj o ofertę
Skontaktuj się z Agentem Metrohosue i umów się na prezentację
Wybierz preferowaną datę
Sprzedaż Mieszkanie Zbożowa, Piotrowice, Katowice
SMDURO529
Sprzedaż
Mieszkanie
Obniżka ceny
594 000 PLN 11 103 za m2
Zbożowa, Piotrowice, Katowice
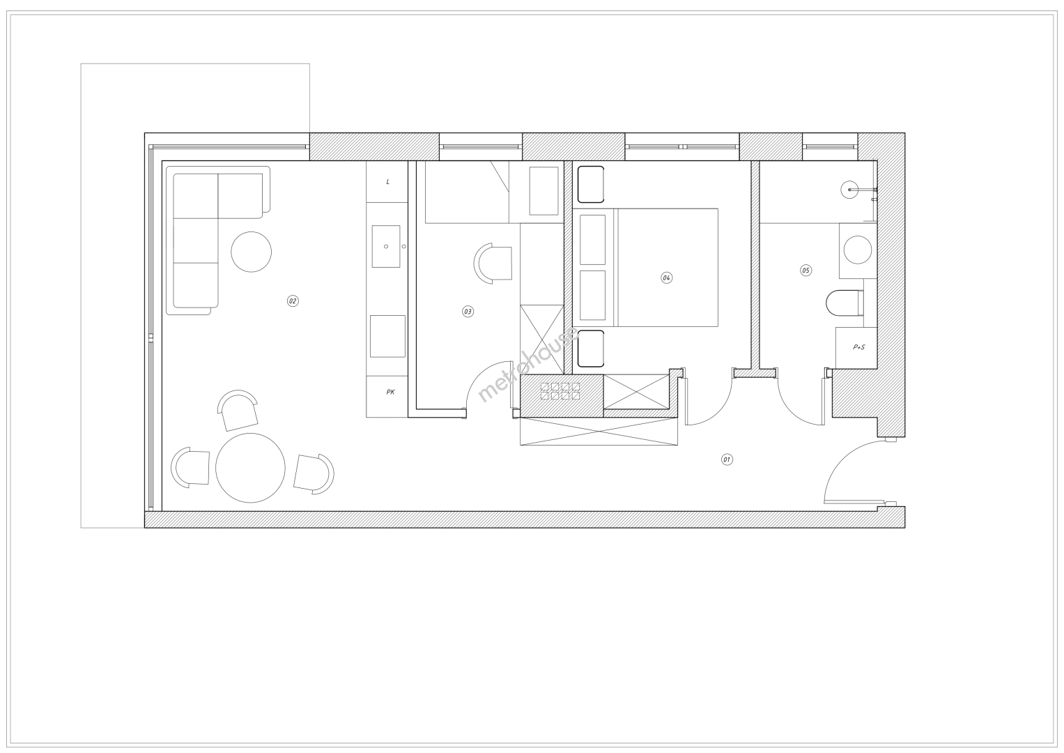
3 pokoje
54 m²
4/4
Zapłacisz PLN/miesięcznej raty kredytu
Oprocentowanie %
O nieruchomości
Zapraszam do zapoznania się z ostatnim mieszkaniem w inwestycji deweloperskiej położonej przy ulicy Zbożowej w Katowicach --> dzielnica Piotrowice.

KUPUJĄCY NIE PŁACI PROWIZJI!! Zwolnienie z podatku PCC 2%

Nieruchomość o powierzchni 53,5 m2 oferowana w stanie deweloperskim podwyższonym. Obejmuje :wylewki, tynki, gładzie, parapety zewnętrzne i wewnętrzne, instalację podłogową i gazową,...
Pokaż więcej
Podstawowe informacje
Stan nieruchomości:
Deweloperski
Rok budowy:
2022
Podłoga:
4
Liczba pięter:
4
Winda:
Nie
Stan elewacji:
6 - Podwyższony
Stan budynku wewnątrz:
Podwyższony
Stan oświetlenia:
Słoneczne
Parking:
Nie
Balkon:
Tak
Podłoga:
Las
Strony świata:
DNY
Ogrzewanie:
Gaz miejski
Certyfikat energetyczny:
Nie określono
Udogodnienia
Blisko lasu
Bliskość transportu publicznego
Dobra inwestycja
Dobra komunikacja
Dobry rozkład
Luksusowa nieruchomość
Ogólnodostępne miejsca parkingowe
Plac zabaw
Alarm
Drzwi antywłamaniowe
Monitoring