.
Patryk Zięba
Master lider
Zapytaj o ofertę
Zadzwoń do Agenta
Zapytaj o ofertę
Skontaktuj się z Agentem Metrohosue i umów się na prezentację
Wybierz preferowaną datę
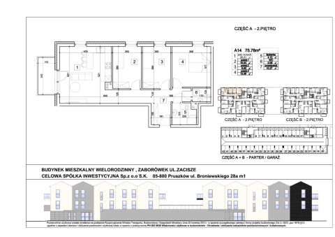
Sprzedaż Mieszkanie Zacisze, Zaborówek, pow. warszawski zachodni
SMGANE799
Sprzedaż
Mieszkanie
620 000 PLN 8 158 za m2
Zacisze, Zaborówek, pow. warszawski zachodni
4 pokoje
76 m²
1/2
Zapłacisz PLN/miesięcznej raty kredytu
Oprocentowanie %
O nieruchomości
Kampinoskie Zacisze Twoje miejsce blisko natury, z dala od zgiełku miasta!
Kup bezpośrednio od dewelopera bez prowizji i bez podatku PCC!


Zamieszkaj w inwestycji Kampinoskie Zacisze w Zaborówku, tuż przy granicy Kampinoskiego Parku Narodowego. To idealne połączenie spokoju natury z wygodnym dojazdem do miasta zaledwie 25 minut autem do Metra Lazurowa! 

Nowoczesny budynek z...
Pokaż więcej
Podstawowe informacje
Stan nieruchomości:
Deweloperski
Rok budowy:
2025
Podłoga:
1
Liczba pięter:
2
Winda:
Tak
Stan elewacji:
5 - Do wprowadzenia
Stan budynku wewnątrz:
Do wprowadzenia
Stan oświetlenia:
Słoneczne
Parking:
Nie
Balkon:
Tak
Podłoga:
Inne budynki
Strony świata:
D
Ogrzewanie:
Gaz miejski
Certyfikat energetyczny:
Nie określono
Udogodnienia
Blisko lasu
Blisko parku
Blisko szkoły
Bliskość transportu publicznego
Dobra inwestycja
Dobra komunikacja
Dobry rozkład
Ogólnodostępne miejsca parkingowe
Piękny widok
Plac zabaw
Światłowód
Domofon
Drzwi antywłamaniowe
Obszar zamknięty
Wideodomofon
Apteka
Bank
Szkoła