.
Urszula Bukała
Broker
Zapytaj o ofertę
Zadzwoń do Agenta
Zapytaj o ofertę
Skontaktuj się z Agentem Metrohosue i umów się na prezentację
Wybierz preferowaną datę
Sprzedaż Mieszkanie Osiedle Zachód B, Stargard, pow. stargardzki
SMGIHY817
Sprzedaż
Mieszkanie
Tylko u nas
320 000 PLN 6 041 za m2
Osiedle Zachód B, Stargard, pow. stargardzki
3 pokoje
53 m²
3/4
Zapłacisz PLN/miesięcznej raty kredytu
Oprocentowanie %
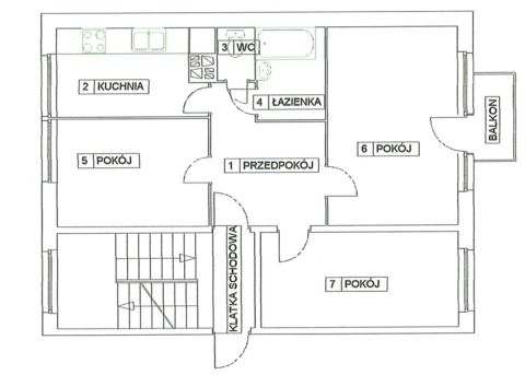
O nieruchomości
Marzysz o mieszkaniu, które łączy funkcjonalny układ, świetną lokalizację i przyjazną atmosferę?
To 3-pokojowe mieszkanie na Osiedlu Zachód w Stargardzie może być właśnie dla Ciebie!


Na powierzchni 52,97 m² znajdziesz:
jasny salon z balkonem idealne miejsce na poranną kawę,
2 sypialnie sprawdzą się jako pokój dziecka, sypialnia lub gabinet,
oddzielną kuchnię z miejscem na rodzinne...
Pokaż więcej
Podstawowe informacje
Stan nieruchomości:
Do zamieszkania
Rok budowy:
1977
Podłoga:
3
Liczba pięter:
4
Winda:
Nie
Stan elewacji:
5 - Do wprowadzenia
Stan budynku wewnątrz:
Do wprowadzenia
Stan oświetlenia:
Bardzo słoneczne
Parking:
Nie
Balkon:
Tak
Podłoga:
Pojedyncze drzewa
Strony świata:
DNY
Ogrzewanie:
Miejskie
Certyfikat energetyczny:
Nie określono
Udogodnienia
Blisko centrum
Blisko parku
Blisko szkoły
Bliskość transportu publicznego
Dobra komunikacja
Dobry rozkład
Ogólnodostępne miejsca parkingowe
Plac zabaw
Światłowód
Widok na park
Domofon
Drzwi antywłamaniowe
Apteka
Bank
Basen
Szkoła
Szpital