.
Anna Górska
Ekspert
Zapytaj o ofertę
Zadzwoń do Agenta
Zapytaj o ofertę
Skontaktuj się z Agentem Metrohosue i umów się na prezentację
Wybierz preferowaną datę
Sprzedaż Mieszkanie Pileckiego, Ursynów, Warszawa
SMJABI754
Sprzedaż
Mieszkanie
Obniżka ceny
Tylko u nas
554 400 PLN 18 654 za m2
Pileckiego, Ursynów, Warszawa
1 pokój
30 m²
3/4
Zapłacisz PLN/miesięcznej raty kredytu
Oprocentowanie %
O nieruchomości
Zyskaj gotowy apartament inwestycyjny w doskonałej lokalizacji sprawdzony model biznesowy na Ursynowie!
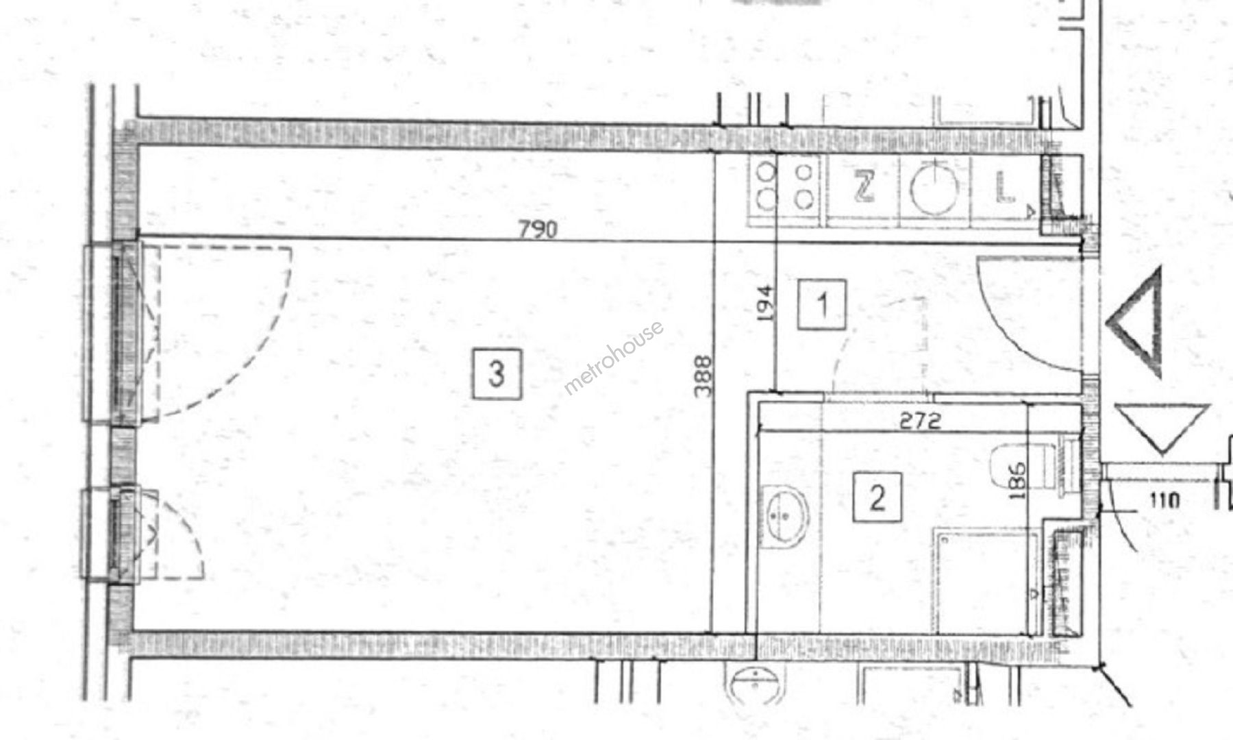
Przedmiotem sprzedaży jest w pełni działający, dochodowy apartament inwestycyjny o powierzchni 29,72 m², usytuowany w jednej z najlepiej skomunikowanych dzielnic Warszawy na Ursynowie, zaledwie kilka minut pieszo od stacji metra Stokłosy.
Opis nieruchomości:
Przemyślany...
Pokaż więcej
Podstawowe informacje
Stan nieruchomości:
Podwyższony
Rok budowy:
2019
Podłoga:
3
Liczba pięter:
4
Winda:
Tak
Stan elewacji:
4 - Do zamieszkania
Stan budynku wewnątrz:
Do zamieszkania
Stan oświetlenia:
Słoneczne
Parking:
Nie
Balkon:
Nie
Podłoga:
Panorama miasta
Strony świata:
ÉK
Ogrzewanie:
Miejskie
Certyfikat energetyczny:
Nie określono
Udogodnienia
Blisko centrum
Blisko szkoły
Bliskość obiektów rekreacyjnych
Bliskość transportu publicznego
Dobra inwestycja
Dobra komunikacja
Dobry rozkład
Pełne umeblowane
Pełne wyposażenie
Ze sprzętem AGD
Domofon
Drzwi antywłamaniowe
Monitoring
Apteka
Szkoła
Szpital