.
Lidia Nowak
Agent
Zapytaj o ofertę
Zadzwoń do Agenta
Zapytaj o ofertę
Skontaktuj się z Agentem Metrohosue i umów się na prezentację
Wybierz preferowaną datę
Sprzedaż Mieszkanie Narutowicza, Centrum, Pabianice
SMMAHU805
Sprzedaż
Mieszkanie
Obniżka ceny
Tylko u nas
130 000 PLN 4 483 za m2
Narutowicza, Centrum, Pabianice
1 pokój
29 m²
0/2
Zapłacisz PLN/miesięcznej raty kredytu
Oprocentowanie %
O nieruchomości
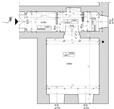
Na sprzedaż kawalerka w centrum Pabianic 29 m², parter, pełna własność z Księgą Wieczystą.

Przedmiotem sprzedaży jest mieszkanie o powierzchni 29 m² zlokalizowane na parterze 2-piętrowej kamienicy w ścisłym centrum Pabianic, tuż przy kompleksach Echo i Tkalnia. Lokal stanowi pełną własność, a w cenie uwzględniony jest także udział 3/100 w działce oraz...
Pokaż więcej
Podstawowe informacje
Stan nieruchomości:
Do remontu
Rok budowy:
1922
Podłoga:
0
Liczba pięter:
2
Winda:
Nie
Stan elewacji:
4 - Do zamieszkania
Stan budynku wewnątrz:
Do remontu
Stan oświetlenia:
Mało słoneczne
Parking:
Nie
Balkon:
Nie
Podłoga:
Podwórko
Strony świata:
É
Ogrzewanie:
Kominkowe
Certyfikat energetyczny:
Nie określono
Udogodnienia
Blisko centrum
Blisko parku
Blisko szkoły
Bliskość obiektów rekreacyjnych
Bliskość transportu publicznego
Dobra inwestycja
Dobra komunikacja
Dobry rozkład
Ogólnodostępne miejsca parkingowe
Domofon
Apteka
Bank
Szkoła