SMNAZA240
Sprzedaż
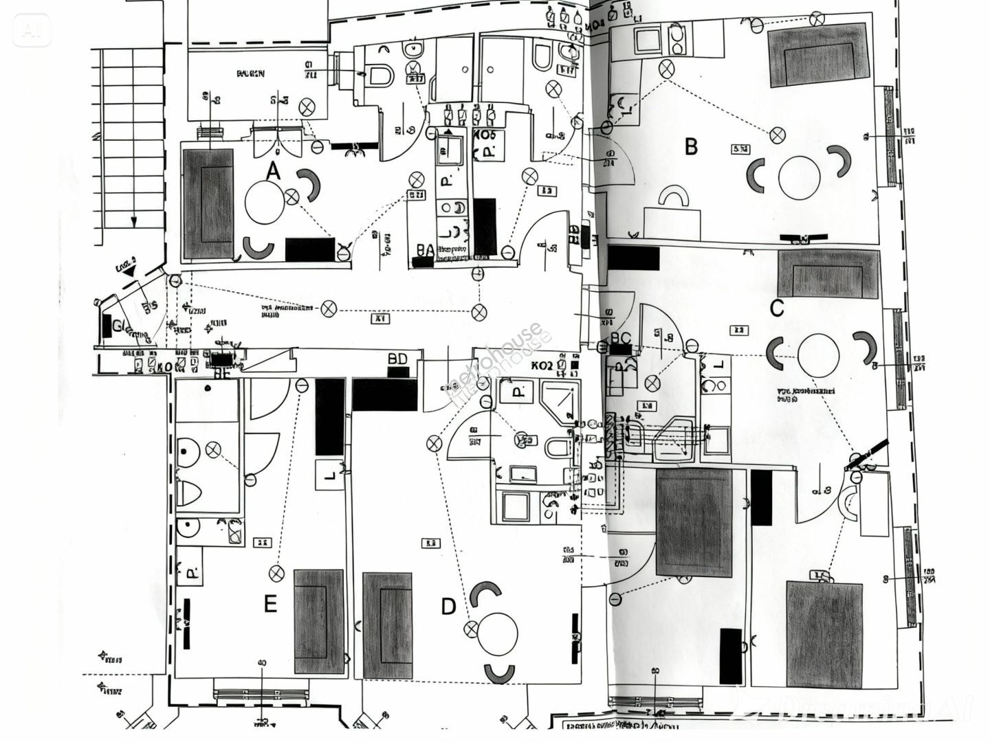
Mieszkanie
1 199 000 PLN 8 752 za m2
Katowice
137 m²
1/4
Zapłacisz PLN/miesięcznej raty kredytu
Oprocentowanie %
Na sprzedaż lokal mieszkalny o powierzchni 137 m², położony w kamienicy po termomodernizacji w samym sercu Katowic, tuż przy dworcu PKP. To doskonała propozycja inwestycyjna, łącząca atrakcyjną lokalizację, funkcjonalny układ i wysoki potencjał dochodowy. Nieruchomość została podzielona na pięć niezależnych mieszkań trzy nowoczesne kawalerki, każda z aneksem kuchennym i łazienką, w pełni umeblowane i gotowe do wynajmu, oraz dwa mieszkania...