.
Alicja Sołtysińska
Ekspert
Zapytaj o ofertę
Zadzwoń do Agenta
Zapytaj o ofertę
Skontaktuj się z Agentem Metrohosue i umów się na prezentację
Wybierz preferowaną datę
Sprzedaż Mieszkanie Dorycka, Bielany, Warszawa
SMVOFO981
Sprzedaż
Mieszkanie
695 000 PLN 18 784 za m2
Dorycka, Bielany, Warszawa
2 pokoje
37 m²
9/10
Zapłacisz PLN/miesięcznej raty kredytu
Oprocentowanie %
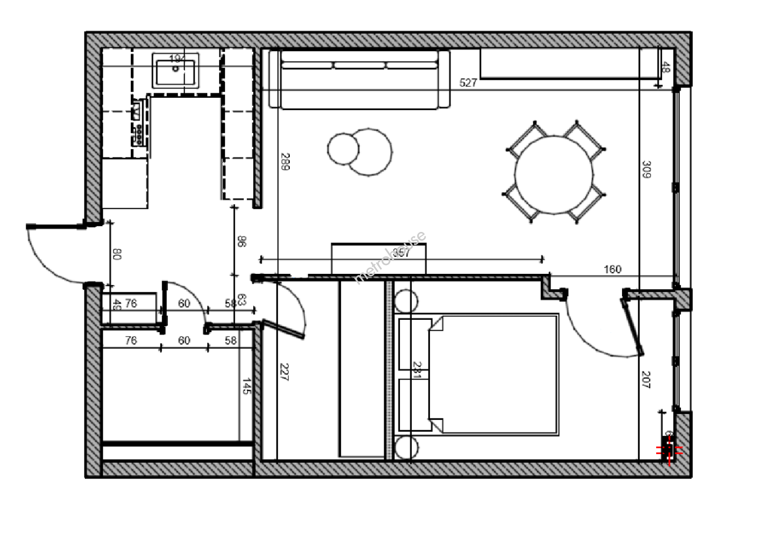
O nieruchomości
2 pokoje, 37 m², położone na 9. piętrze 10-piętrowego bloku z lat 70. Mieszkanie składa się z salonu z aneksem kuchennym, sypialni oraz piwnicy. Lokal w trakcie generalnego remontu  wymieniane instalacje, na podłodze parkiet. Na zdjęciach widoczne wizualizacje z poprzednich inwestycji. W budynku winda i ogólnodostępne miejsca parkingowe. Forma własności: pełna własność...
Pokaż więcej
Podstawowe informacje
Stan nieruchomości:
Nowy. nienaruszony.
Rok budowy:
1970
Podłoga:
9
Liczba pięter:
10
Winda:
Tak
Stan elewacji:
5 - Do wprowadzenia
Stan budynku wewnątrz:
Do wprowadzenia
Stan oświetlenia:
Słoneczne
Parking:
Nie
Balkon:
Nie
Podłoga:
Inne budynki
Strony świata:
DK
Ogrzewanie:
Miejskie
Certyfikat energetyczny:
Nie określono
Udogodnienia
Blisko parku
Dobra inwestycja
Dobra komunikacja
Dobry rozkład
Luksusowa nieruchomość
Ogólnodostępne miejsca parkingowe
Pełne umeblowane
Pełne wyposażenie
Plac zabaw
Po remoncie
Światłowód
Ze sprzętem AGD
Domofon
Drzwi antywłamaniowe
Apteka
Bank
Basen
Szkoła
Szpital