.
Danuta Lewandowska
Master lider
Zapytaj o ofertę
Zadzwoń do Agenta
Zapytaj o ofertę
Skontaktuj się z Agentem Metrohosue i umów się na prezentację
Wybierz preferowaną datę
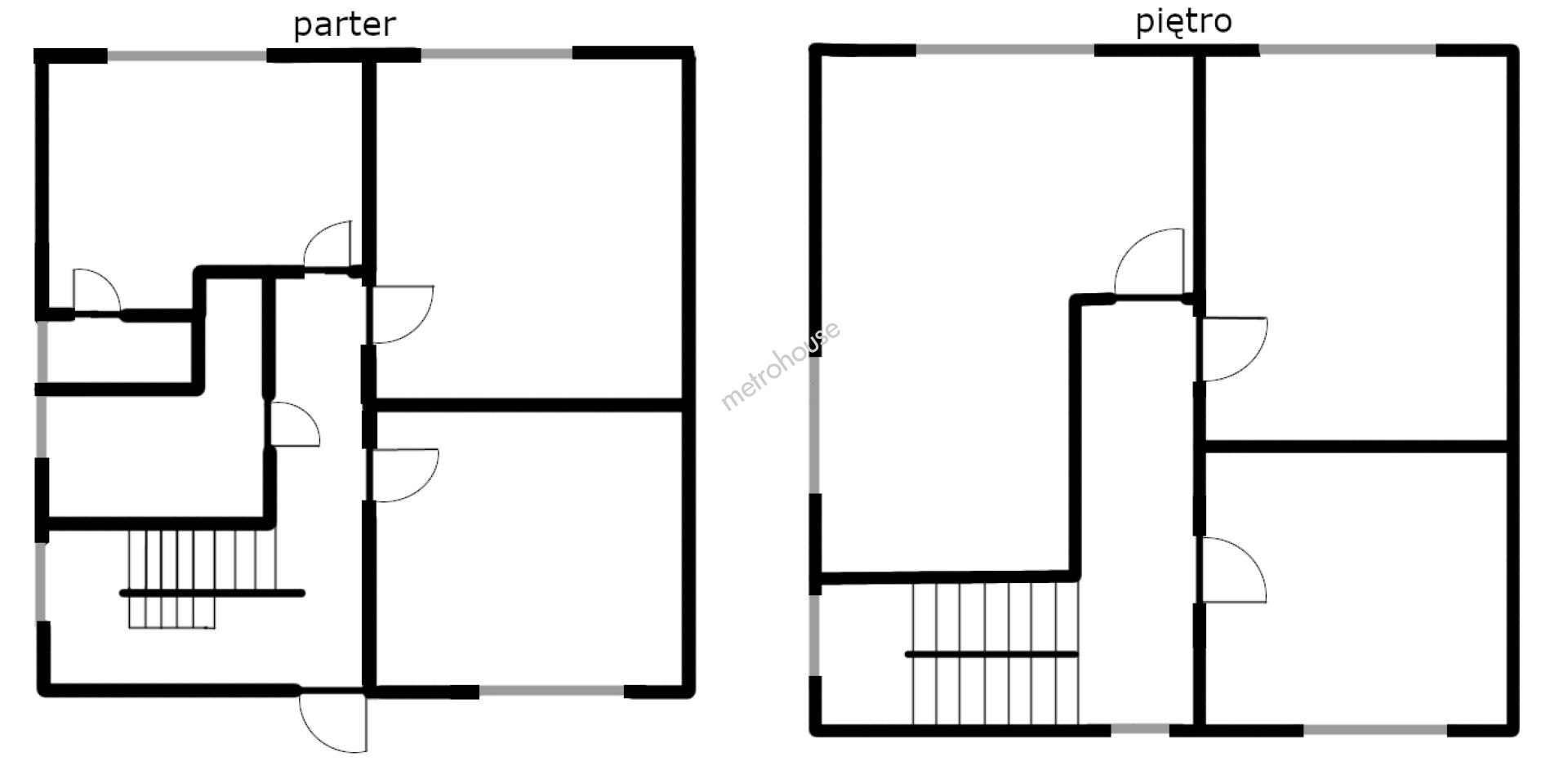
Sprzedaż Dom Rybno, pow. działdowski
WYZI427
Sprzedaż
Wolnostojący
480 000 PLN 2 182 za m2
Rybno, pow. działdowski
6 pokoi
220 m²
939 m² działka
Zapłacisz PLN/miesięcznej raty kredytu
Oprocentowanie %
O nieruchomości
Nieruchomość z wielkim potencjałem z możliwością zamieszkania dla trzech rodzin. Trzy kondygnacyjny dom to niebywała okazja dla osób poszukujących domu pod wynajem lub dla rodziny wielopokoleniowej. Parter domu jak i pierwsze piętro są obecnie wynajmowane. Drugie piętro zostało generalnie wyremontowane co pozwoliło stworzyć pełne uroku mieszkanie. Przy domu garaż i estetycznie zbudowana wiata. Ogród z potencjałem pozwoli na własną aranżację i...
Pokaż więcej
Podstawowe informacje
Stan nieruchomości:
Nie określono
Rok budowy:
1978
Liczba pięter:
2
Stan elewacji:
Nie określono
Stan budynku wewnątrz:
Do wprowadzenia
Stan oświetlenia:
Nie określono
Podłoga:
Nie określono
Ogrzewanie:
Węglowe
Materiał:
Silikat
Certyfikat energetyczny:
Nie określono
Parking:
Nie